373, Av. de Buckingham, Buckingham (Gatineau)
373, Av. de Buckingham, Buckingham (Gatineau), QC, J8L2G6
Bases
- Superficie du batîment: 160.40
- Date ajoutée: Ajouté il y a 1 semaine
- Genre de propriété: Maison à étage
- Catégorie: à vendre
- Type: résidentiel
- Chambres: 4
- Salles de bain: 1.5
- Superficie: 1395 pc
- La taille du lot : 2546 pc
- Année de construction: 1875
La description
-
La description:
Située en plein coeur du village de Buckingham, cette propriété bénéficie d'un emplacement de choix, à distance de marche de tous les services : commerces, écoles, restaurants et transports. Offrant un excellent potentiel, cette grande maison conviendra parfaitement à un investisseur ou à un acheteur bricoleur souhaitant la rénover selon ses goûts. CARACTÉRISTIQUES : * Propriété à fort potentiel * Terrain spacieux offrant plusieurs possibilités d'aménagement * Immense garage double détaché, idéal pour entrepreneur, collectionneur ou atelier * Emplacement stratégique près des services! Faite Vite !!!
Afficher toute la description
Pièces
-
Pièces
:
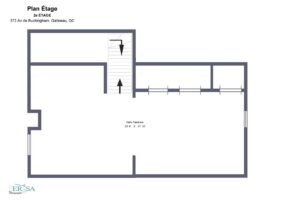
Type de chambre Dimensions Superficie Niveau Longueur Largeur Hall d'entrée 9.8x8.1 P 79.38 1er niveau/RDC 9.8 8.1 Cuisine 10.8x8.0 P 86.4 1er niveau/RDC 10.8 8.0 Salle à manger 12.2x10.10 P 123.22 1er niveau/RDC 12.2 10.10 Salon 12.2x10.10 P 123.22 1er niveau/RDC 12.2 10.10 Salle d'eau 4.10x4.3 P 17.63 1er niveau/RDC 4.10 4.3 Salle de lavage 8.4x5.0 P 42 1er niveau/RDC 8.4 5.0 Véranda 19.0x6.9 P 131.1 1er niveau/RDC 19.0 6.9 Hall d'entrée 11.5x8.1 P 93.15 1er niveau/RDC 11.5 8.1 Chambre à coucher 11.11x8.7 P 96.657 2ième étage 11.11 8.7 Chambre à coucher 11.6x10.0 P 116 2ième étage 11.6 10.0 Chambre à coucher 9.2x8.5 P 78.2 2ième étage 9.2 8.5 Chambre à coucher 10.10x7.10 P 71.71 2ième étage 10.10 7.10 Salle de bains 11.10x8.4 P 93.24 2ième étage 11.10 8.4 Salle familiale 23.4x11.10 P 259.74 3ième étage 23.4 11.10 Rangement 15.8x35.0 P 553 Sous-sol 15.8 35.0
Adresse
Commodités et Caractéristiques
- Façade bâtiment: 21.60
- Profondeur bâtiment: 37
- Évaluation municipale du terrain: 47300
- Évaluation municipale du bâtiment: 191900
- Taxes municipale: 2001
- Taxes scolaire: 152
